
臨(lín)海市草莓视频色真(zhēn)空設備有限公司
電話(huà):0576-85021388/85138880
傳真:0576-85021389
聯係人:羅淡成17357631888
網址:www.af-power.com
地址:浙江(jiāng)省臨海江南街道花溪路下嶴餘
該係列泵可直接從大氣起動抽氣,它可(kě)單獨使用,也可作(zuò)為增壓泵、羅(luó)茨泵、氣體循(xún)環冷卻(què)羅茨泵、油擴散泵、分子泵的(de)前級泵、維持泵、鈦泵的預抽泵(bèng)。可供真空鍍膜、真(zhēn)空熱處理、真空冶煉、電子管、燈泡(pào)、化工、包裝、吸塑成(chéng)形、光伏、工礦企業的蒸餾、幹燥、冷凍、過濾、理化等真空作(zuò)業(yè)中。
一、特點
1、此泵可在5-40℃範圍內和進氣口壓強<1.33×103Pa的條件下,允許長期連(lián)續工作;
2、設有氣鎮閥,可抽除少量水(shuǐ)蒸汽,延長泵油使用時間(除2X-4A外);
3、霓虹(hóng)燈製造專用真空泵,單晶爐、多晶爐(lú)、層壓機(jī)配套等真空作業。
4、可單獨作低真空泵用(yòng),也可與其(qí)它高(gāo)真空泵組合作前級泵用(yòng)。
二、技術參數

三、抽氣速(sù)率曲線

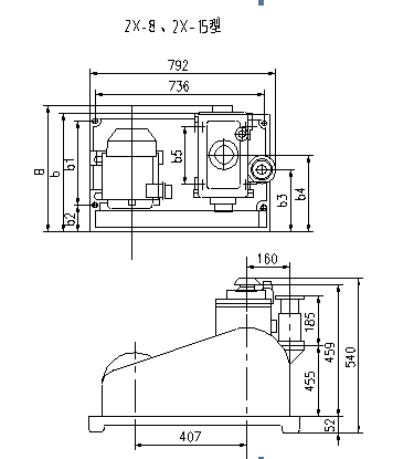
外形尺寸圖
2X-A係列(liè)直聯旋片式真空泵外形及安裝尺寸

