
臨海市草莓视频色真空設備有限公司
電話:0576-85021388/85138880
傳真:0576-85021389
聯係人:羅淡成17357631888
網(wǎng)址:www.af-power.com
地(dì)址:浙江省臨海江南街道花溪路下嶴餘
該係列(liè)泵可直接從大(dà)氣起動抽氣,它可單獨使用,也可作(zuò)為增壓泵(bèng)、羅茨泵、氣體循(xún)環冷卻羅茨泵、油擴散泵、分子泵的前級泵、維持泵、鈦泵的預(yù)抽泵。可供真空鍍膜、真空熱處理、真空冶(yě)煉、電子管、燈泡(pào)、化工(gōng)、包裝、吸塑(sù)成形、光伏、工(gōng)礦企業的蒸餾、幹燥、冷凍、過濾、理化等真空作業中。
一、特點
1、此泵可在5-40℃範圍(wéi)內和進氣口(kǒu)壓強<1.33×103Pa的條(tiáo)件下,允許長期連續工作;
2、設有氣鎮閥,可抽除少量水蒸(zhēng)汽,延長泵油使用(yòng)時間(除2X-4A外);
3、霓虹燈(dēng)製造專用真空泵,單晶爐、多晶爐、層壓機配套(tào)等真(zhēn)空作業。
4、可單獨作低真空泵用,也可與(yǔ)其它高真空泵組(zǔ)合(hé)作前級泵用(yòng)。
二、技術參數

三、抽氣速率(lǜ)曲線

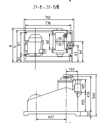
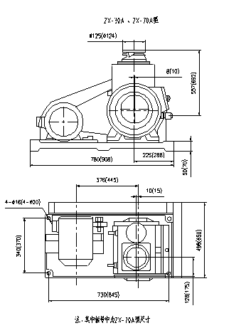
外形尺(chǐ)寸(cùn)圖
2X-A係列直聯旋片式真空泵外形及安裝尺寸


